Niall’s virtual diary archives – Wednesday 15 April 2026

by . Last updated .

Word count: 2545. Estimated reading time: 12 minutes.
Summary:
The author’s current recovery from illness is described. Detailed plans regarding the house construction are presented, including groundworks validation and roofing installation strategies. Cost savings achieved through material substitutions are detailed. Furthermore, prototype roof sections are being constructed for practical experience to be gained regarding the project’s execution.
Wednesday 15 April 2026:
14:07.
Word count: 2545. Estimated reading time: 12 minutes.
Summary:
The author’s current recovery from illness is described. Detailed plans regarding the house construction are presented, including groundworks validation and roofing installation strategies. Cost savings achieved through material substitutions are detailed. Furthermore, prototype roof sections are being constructed for practical experience to be gained regarding the project’s execution.
Woke up early this morning with plans as the groundworks got cancelled, but I began to feel increasingly awful so I went back to bed. After four hours of additional sleep, I still feel not well, so I won’t be leaving the house today. Instead I’ll be writing this entry, as I was going to write this anyway later this week.

I remember getting something a bit like this after my wedding when I assumed it was some sort of covid precursor infection as I was laid up for days with a pounding headache and my stomach all nauseous. I am beginning to wonder if this is in fact a reaction to being overly stressed for too long whereby I run at 120% capacity for many days, and then kinda collapse afterwards. Certainly the ten days in England looking after my kids alone would qualify as a wedding-like over-exertion. In any case, here’s hoping that I’m fully recovered tomorrow, as I really do need to be getting on with things.

Before I get on with the main content of this entry, I have finally replaced llama 3.1 8b as the AI summarising these entries with Gemma 4 12b! This was forced by recent Ollama versions hanging, and after fiddling with it for a while I gave up and moved over to LMStudio which now also has a REST API. LMStudio runs models faster on Mac OS than Ollama did, so I can now afford to run a 12b model and it takes about seventy seconds per entry which is a little more than Ollama did with llama 3.1 8b, but the quality of summary and keywords generated is noticeably better. I’m half tempted to let it re-summarise all the previous posts … maybe I shall in the future.

Nearly a month ago now my surveyor marked out the exact locations for the service popups for the house using paint onto the T2 stone (a very expensive structural gravel). As paint washes away and gravel moves, I made those more permanent by chopping up a 4.8m length of steel rebar into foot long lengths using an angle grinder, and hammering them into the gravel. For safety’s sake, and also because it’s very easy to miss the rebar in the gravel and trip over them, I put yellow plastic mushroom safety caps on top of each rebar point, and thus you get this sight from above:

If you overlay on top of that the groundworks plan you get this:

If you look closely, you will see that the yellow points map onto the plan perfectly except in the bottom left. That, at the time, introduced a fair panic because it was days before I took the kids to England, and groundworks were supposed to start yesterday morning the day after I got back. Obviously my surveyor was also rather panicked, so he supplied me a list of X-Y values for each point on the site as marked. I then came up with a mechanism for validating the position of the errant points using known good points:

The pencilled values are what was measured using a measuring tape onsite, and as you can see they match exactly what they should have been. Crisis averted!

So what caused this? It turns out that my drone, the DJI Mini 3 Pro, takes a very distorted picture. Onboard software undistorts that picture into a JPEG, and due to its onboard CPU not being powerful, they use a not particularly accurate but lightweight algorithm. In the future, I need to capture the RAW output and run undistortion on a proper PC and according to the internet, the output should then be much less distorted. Which is good to learn!

The roof

My attention has now shifted away from the groundworks towards getting the roof on, as after the builder has departed I need to get the roof on ASAP and given my severely limited cash flow given lack of income since June 2025, we shall be fitting the roof ourselves.

Originally, we had been thinking real slate or fibre-cement tile for the sloped roof with EPDM for the flat roof, and probably contracting in somebody to do that part as it would be quicker. We had originally budgeted €35k inc VAT for the roof:

  • There is 232 sqm of sloped roof and 40 sqm of flat roof with 29 metres of ridge, 79 metres of fascia, 44 metres of gutter, 35 metres of verge, and 10 metres of valley.

  • Assuming use of two 30 x 2.65 copper nails and one copper crampion per fibre-cement slate, I reckon materials cost for the slates is around €31 inc VAT per sqm, so €7,152 inc VAT.

  • EPDM would cost around €25 inc VAT per sqm, so €2000 inc VAT including oversizing.

  • Black uPVC fascia would cost around €800 inc VAT for materials.

  • Gutters would cost €700 inc VAT for materials (we are using extra large industrial six inch gutters to harvest rainwater).

  • Lead valleys would cost around €550 inc VAT for materials.

  • Metal trimmed verges would cost €385 inc VAT for materials.

Already you’re looking at €12k of materials and labour is €400-500 per day, so there goes your €35k of cost pretty quickly.

The gutters are interesting, they are from Irish Rollforming who are just up the road from me:

These have 0.02 m3 volume which is twenty litres per metre of length. Is this big enough?

  • Worst case recorded rainfall in Ireland was 36.2 litres per sqm per hour, and worldwide it was 107 litres per sqm per hour. Taking the Irish worst case, that is 0.01 litres per sqm per second.

  • 86 sqm of roof to the south, probably 100 sqm of roof to the north for the main gutter. So that would be 0.86-1 litres of rain per second entering each gutter.

  • A 100 mm diameter downpipe should be able to sink 65 litres per second BUT the water needs to make it the horizontal length of the gutter first, and it’s almost level (fall is 1:600, which would be 30 mm across the length of the house). I think the calculation is to divide the volume by ten to get an approximate flow capacity, so twenty litres per metre length would become two litres per second capacity.

  • Therefore, a six inch gutter is oversized twofold for the roof and worst case hourly Irish rainfall. That seems about right: gutters will fill with debris and bursts of rainfall can be more intense than the per hour recorded maximum. Also, almost certainly it’s going to rain more intensely in the near future.

The plan is to fit the six inch width gutters where we harvest the rainwater, and four inch width gutters elsewhere. Both will be naked galvanised steel colour to save money, but it should also create an interesting look against the black uPVC fascia.

Anyway, the above was the original design from two/three years ago, and given my new cash poor time rich circumstances I’ve made the following changes:

  1. Instead of slates fixed with copper nails and crampions, I’ll be fitting concrete tiles fixed with aluminium nails which is the cheapest available roofing solution in Ireland right now. I reckon it’ll cost around €13 inc VAT per sqm for a total cost of around €3,100. This saves €4k, but the concrete tiles are also harder for me to mess up installing, albeit much heavier to have to lift up to the roof (for which I have created an electric winch).

  2. Metal trimmed verges replaced with cheap polypropylene plastic ones, saving €100. This is also because the price above is for slates and equivalent ones for tiles are quite a bit more expensive.

  3. Lead valleys and flashings replaced with spare bits of EPDM, seeing as I’ll be buying a load of EPDM for the flat roofs anyway. This saves a few hundred more euro.

All in all, I think I can get the whole roof done for under €10k all in now, so that’s €25k saved all of which will be desperately needed to pay for the outer block leaf.

Flat roof construction

Here is my current hallway:

Those three large boxes contain €1,800 worth of EPDM membrane! Each box contains 40 sqm, so that is 120 sqm in total, and the thickness is 1.14 mm which is a grade above the 1.0 mm stuff sometimes used for residential applications. It weighs a lot, 57 kg per box:

… which corresponds to 1.267 g/m2 density, which is 1,111 kg/m3 for the material which is less dense than I would expect. Within each box is a roll of the material with plywood protectors for the ends:

EPDM is not a popular flat roof solution in Ireland for some reason, so finding a supplier of large sheets who will deliver to Ireland for a reasonable price is hard. I went with VEVOR for the above, who are not the cheapest but once delivery to Ireland is factored in they are competitive. Before ordering I did make sure all the sections I’d need were covered, I added a 750 mm oversize to all dimensions just to be safe:

The oversize should let me avoid flashing and give plenty of extra material to run underneath tiles etc. The tanks get two sheets because you need one onto the OSB deck below the outer PIR board insulation, and another above the insulation below the water tanks. The other flat roofs I intend to fit insulated metal roof panels above the EPDM glued to the OSB decks, those will also come from Irish Rollforming but they can be left off until I get more money. My architect had specified torch on felt for the OSB deck waterproofing, and at €12.35 inc VAT per sqm it is undoubtedly cheaper than the €14.20 inc VAT per sqm which my EPDM cost. However by the time you factor in the rental of the torch and the multiple bottles of gas it would go through, plus my zero experience with torching on felt and the fire and burn risk, I decided I’d just pay the two hundred euro more for EPDM which is a far superior flat roof anyway than torch on felt.

Prototyping a roof

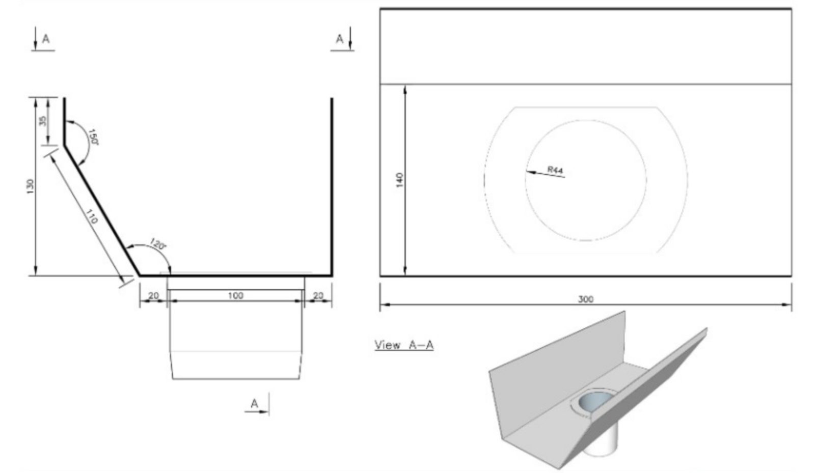
Seeing as I’ve never roofed a house before, I am understandably a little anxious about it so I’ve decided to build a prototype roof eave matching what the builder will build to get some experience. You can see in the upper photo above the black uPVC fascia, the grey uPVC eaves tray, two eaves ventilators (25 mm and 10 mm, I bought one of each as I don’t know the correct one for my roof yet), and at the far end is a 1 kg box of aluminium clout nails. Here is my office currently:

The big sheet is a sample of the ‘roof tile effect’ metal roof panel from Irish Rollforming; at its bottom is a concrete roof tile ventilator used for ventilating the roof near the ridge; to the right of that is the cheapest available plastic verge which is nasty but looks sufficient; bottom of picture is a stack of concrete roof tiles. All I am currently missing is the wood from which to construct an example eave, which will be to this design:

The rafters are at 400 mm centres whereas the walls will be at 600 mm centres, so there is a ‘seat’ running on top of the wall studs which is called ‘head binder’ in the diagram above. The 295 mm thick rafters extend out as far as the fascia and soffit backing boards, which I think will be 35 mm thick wood, and it appears to be 150 mm tall. They show a 225 mm tall fascia being affixed externally, but theirs misses the lip at the bottom:

I think that means that the fascia will be 10-12 mm lower at the top, and one would therefore extend the fascia upwards with a 10 mm ventilator to support the eaves tray. The alternative is a 150 mm tall fascia, but that would stop short of the subfascia board which then would get in the way of the 25 mm ventilator – also the resulting total would be 175 mm tall, which from their diagram looks to be not enough. In any case, the eaves tray then runs from under the roof membrane over the tilting fillet then over the over-fascia ventilator with it tipping into the gutter. This is much easier to show than describe in words, so here is a picture of somebody else’s eave:

The bottom row of roof tile ends land on top of the uPVC eaves tray such that any condensation which forms underneath the roof tiles will drip down the roof felt and collect where the tile meets the eaves tray, and I assume would drain into the gutter if enough of it accumulated. The bottom of each roof tile has drains to one side – I assume that the thinking here is that any water which pools at the bottom of a tile would overflow to the side and therefore escape down the small vertical gap between tiles.

Their current design has a 210 mm eaves overhang which is comprised of a 50 mm ventilation cavity, 100 mm outer block leaf, 10 mm render, 22 mm LED strip mount, and finally 28 mm fascia lip. The LED strip clips are 16 mm wide, however we want them slightly away from the wall to project the light further.

My intention is to build two approx 1 sqm roof samples, one using concrete tiles, the other the metal box sheet above, and to fit each with fascia and gutters and see how it all looks and lines up. I’ll also come away with hopefully enough experience that I can fit the roof to the house for my very first time correctly.

What’s next?

In terms of priority queue, something rapidly moving up the list is that I need to do a full itemisation of what has been bought from Aliexpress for the house in the past, and make absolutely sure everything has been purchased already. The reason why is that on 1st June the EU will bring in levies on small packages from China, and that will make everything purchased thereafter much more expensive. So if I’m missing anything e.g. light switches, relays, whatever – those need to be ordered before end of April to ensure they’ll pass EU customs before 1st June.

I have another diary entry coming at some point on biasing LLMs, and if the groundworks get done there will be surely an entry on the results of that. Megan’s car will fail its NCT tomorrow due to at least a worn ball joint and a cracked windscreen, so I’d imagine some of my time will be going on that. There are more WG14 papers to write which keep getting pushed back as other higher priority stuff takes precedence. And there is the continuing backlog of maintenance work on my open source libraries which seems to constantly be pushed back too.

As always, nowhere near enough time to get things done! I may not be earning, but I always keep busy.

#house




Go back to the archive index Go back to the latest entries

Contact the webmaster: Niall Douglas @ webmaster2<at symbol>nedprod.com (Last updated: 2026-04-15 14:07:16 +0000 UTC)